Boissano, villa indipendente di ampia metratura con giardini privati, garage e terrazze vista mare. Rif. BOI 31
Boissano,
A soli 5 minuti dal cuore di Loano, in posizione soleggiata, proponiamo in vendita questa grande villa personalizzabile e completamente indipendente con splendida vista mare e panoramica.
L'immobile è ideale sia come residenza unica sia come soluzione bifamiliare grazie alla presenza di collegamenti interni ed esterni tra i vari livelli, ciascuno impreziosito da giardini privati e terrazze con vista.
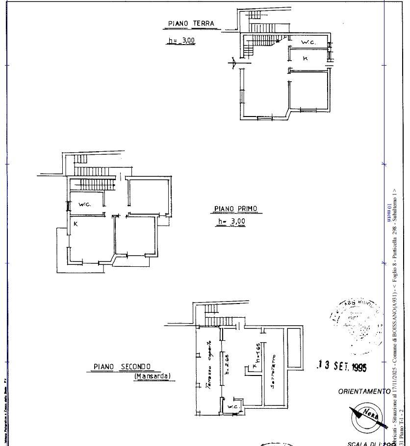
Al piano terreno, dopo aver attraversato un ampio cortile con accesso carrabile perfetto per parcheggiare almeno quattro auto, si viene accolti da un ampio soggiorno, una cucina abitabile, una camera matrimoniale e un bagno, oltre al giardino perfetto per piacevoli momenti di relax.
Il primo piano ospita un luminoso disimpegno, un soggiorno con cucina a vista, due camere, un bagno e l'accesso a un terrazzo panoramico e alla relativa porzione di giardino, perfetti per cene all'aperto e attimi di quiete immersi nel verde.
Salendo al secondo piano, un ampio disimpegno conduce a una camera, un bagno e una meravigliosa terrazza loggiata, vivibile e ricca di fascino, da cui godere di una vista mare mozzafiato e dell'armonia del paesaggio circostante, con accesso diretto al giardino del piano.
Completano la proprietà una spaziosa cantina/magazzino di circa 25 mq e un grande garage di circa 150 mq capace di ospitare comodamente 4/5 auto.
Una dimora dal carattere unico, pensata per chi desidera vivere la bellezza della Riviera in un contesto esclusivo e ricco di comfort.
Alcune immagini presenti in questo annuncio rappresentano un'elaborazione grafica tramite AI a scopo illustrativo di una potenziale ristrutturazione interna ed esterna dell'immobile.
Potete contattarci senza impegno, per ottenere maggiori informazioni e/o prenotare una visita di questa villa indipendente a Boissano.
Video
Tour 360°
Caratteristiche
- Tipo: Villa
- Classe energetica: G
- Camere da letto: 4
- Riscaldamento: Autonomo
- Bagni: 2
- Locali: 8
- Stato attuale: Libero al rogito
- Piano: Edificio
- Terrazzo: Presente
- Balcone: Presente
- Posto auto: 1
- Garage: 4
- Spese condominiali: €/mese
- Vista mare: Sì
- Immobile per residenti: Sì
- Giardino: Privato




















































